|
× [PR]上記の広告は3ヶ月以上新規記事投稿のないブログに表示されています。新しい記事を書く事で広告が消えます。 |
|
※ hakusan2funsou.web.fc2.com から引用 Question (東京都 50歳代 会社役員 男性)
Answer (住宅ねっと相談室カウンセラー 弁護士 日置 雅晴)
2009年6月4日掲載の記事から引用。 続きは、→日経住宅サーチ 住宅ねっと相談室をご覧ください。 PR |
||
|
開発事業者(NIPPO 神鋼)は説明会を開催しません。 図面等も配布されません。 標識設置だけの状態で1ヶ月が経過しました。 条例で、説明会の開催等が義務付けられています。 行政機関からも開発事業者に指導していただきたいものです。
|
||||||
○武澤委員長 続いて、村越委員。 ○村越副委員長 先ほど中高層の所でも開発行為というようなことが出たんですけれども、実は区民の方から御相談を受けたんですが、堀坂の所にある旧富士銀行社宅ですか、そのところのマンション建設では、今回、この規模は1万平方メートル以上ということで、都の方の範囲ということなんですけれども、これは開発行為ということにはならなかったと、先ほど、私も、事前審査の前、開発行為の場合だと30日というふうに思っていたんですが、さらにその前に協議というようなものがあって、そうしますと事前審査に出た段階で、この開発行為に当たらないというふうなことになったときには、その事前審査の段階で、どのようなやりとりが建設業者と区の方の間であったのか、ちょっと確認したいんですけれども。 ○武澤委員長 小野計画調整課長。 ○小野計画調整課長 開発行為に当たる、当たらないの問題につきましては、確認申請が出された段階で、それは自治体に出される場合もありますし、民間機関に出される場合もあるんですが、開発行為に当たるか当たらないか、ちょっと微妙だなというときには、私どもの方に問い合わせといいますか、照会が来ます。それで、その照会が来た段階で、私どもの方でその設計事務所から図面等を取り寄せて、それで開発行為に当たるか当たらないかの判断をしまして、その意見照会に当たる当たらないの回答をしていくというようなことでございます。 ○武澤委員長 村越委員。 ○村越副委員長 ちょっと私も分からないので、その開発ってどのくらいあるのかなという感じで調べたんですけれども、規模がかなり大きいマンションですと、大体は開発行為に当たっている、開発行為にかかっているというふうに思うんですが、この場合、何か事前の照会があったときに、ただ図面だけを見て、その判断ができるわけなんですか。それとも何か協議というようなことがあるわけですか。 ○武澤委員長 小野計画調整課長。 ○小野計画調整課長 開発行為に当たるか当たらないかということにつきましては、1メートルを超える地盤の切り盛りがあるかないか。それから、あと道路の新設・廃止があるか、あるいは道路の拡幅があるかといったような内容が開発行為に当たる当たらないの基準でございますので、それが分かるような図面を取り寄せて判断をするということでございます。 ○竹澤委員長 村越委員。 ○村越副委員長 今回のところですと、道路の拡幅というのはあるわけですよね、ただ、それはこれまでの文京区とのまちづくりのことで、都市整備基盤公団ですか、そのときの協定があって拡幅をするということで、今回の業者の方もそれを守ってということで、ですから拡幅はあるけれども、その協定などがあるから開発行為としなくてもいいというようなことではないんですか。それとも、1メートルの切り盛りはありますよね、さらに今回、地下2階部分をつくるに当たっては、擁壁の部分をかなり掘り下げるというようなこともあるので、設計をみた限りでは開発行為に当たるのではないかと思うんですけれども、その辺の基準としては、設計図だけで判断されたのか、それともまちづくりのところで拡幅というのがあるから、あとのことに関しては開発行為をしなくてもいいというふうな判断をされたんですか。その辺は。 ○武澤委員長 小野計画調整課長。 ○小野計画調整課長 堀坂につきましては、その開発行為の基準というのを持っておりまして、東京都と同じ基準なんですが、その要綱等によりまして、道路境界線を超える区道等として道路整備を行う場合、これは開発行為に当たらないという位置づけがございます。それと、ここでは要綱等というふうになっているんですが、シビックセンターのまちづくり周辺計画という中に、6 メートルに拡幅するという明確な位置づけをしてございますので、ここに準ずると、ここで読めるということで、まず道路の拡幅については対象外だということで判断いたしました。そのときに道路の横に1.5メートルの歩道上空地を設けるということ。これは、前の公団との覚書の中で、道路拡幅とともにあわせて、その1.5メートルの歩道上空地についても覚書の中に取り込んでおります。ですから、それは道路と同等ということで考えております。 それから、あと擁壁が出てくるんですが、その拡幅に伴って出てきた擁壁部分につきましては、その基準の取扱いの中で、既存の擁壁を造り返る、部分的な切り盛りの行為を行う場合には、開発行為に当たりませんよと、こういう規定がございます。擁壁をやり返る場合です。今回も、セットバックした形で擁壁ができるわけですが、その切り盛りする部分が擁壁の底盤の中で、底盤って、下に盤があるわけですが、その上の部分だけの切り盛りということですので、それで開発行為に当たらないということで判断してございます。その関係の図面を取り寄せて判断したということです。 ○武澤委員長 村越委員。 ○村越副委員長 そうしましたら、それぞれの基準でこのように判断したということは、何か文章的なもの、建築確認を出すときの文面ですか、そういうものは区の方から業者の方に提出をしているんですか。 ○武澤委員長 小野計画調整課長。 ○小野計画調整課長 確か民間確認機関だったと思いますが、そちらから私どもの方に照会文が来まして、その来ました照会文に該当しないということで返事をしたものが向こうに、原文は向こうにわたっています。回答したものは。 ○武澤委員長 村越委員。 ○村越副委員長 当たらないという単なる言葉だけで、今、説明されたようなことは述べられてということなんですか。 ○武澤委員長 小野計画調整課長。 ○小野計画調整課長 当たらないという中に、補足説明として正式な表現の仕方はちょっと忘れましたが、その図面を出させていますので、その資料何号から何号に基づいて判断した結果、当たらないと判断していますよということで、その設計事務所から取り寄せた図面と同じ図面を向こうにも渡すような形で、この図面で判断して、開発行為に当たらないというふうに判断していますよということを、相手にも分かるようにしてあります。 ○武澤委員長 村越委員。 ○村越副委員長 今、開発行為に当たらないという判断をめぐっては、住民の方から、その決定が不当ではないかということで、不服申請というんですか、それが出ていると思うんですが、その辺については、今後どのような進め方になるのでしょうか。 ○武澤委員長 小野計画調整課長。 ○小野計画調整課長 不服といっても、今回は異議申し立てという形で開発行為の処分をしておりませんので、今回は異議申し立てということで近隣の方から出されておりますが、これについては、総務課の方が窓口になって、総務課が回答の準備をしているということを聞いております。 ○武澤委員長 村越委員。 ○村越副委員長 それから、通学路の所で大型の車両が通るのではないかということで、保護者の方たちが非常に心配をしている。その矢先の12月1日ですか、障害児の方がトラックにひかれそうになったという事件が起こって、警察の人も来て、事故にはならなかったんですが、ひかれそうになったというようなことがあったんですけれども、その辺のことについては認識されていらっしゃるのか。 それから、教育委員会の方に、保護者の方たちのたくさんの署名をつけて、道路の安全、子供たちの安全のために大型車両が通らないようにというような要望があったんですが、そのとき、ある教育委員の方もとてもその辺の所は心配なさっているんですけれども、文京区としては、この道について、大型車両が入ることについて、どのような見解を持っていらっしゃるのでしょうか。 ○武澤委員長 小野計画調整課長。 ○小野計画調整課長 そのひかれそうになったという事実は私自身は聞いておりませんでした。それから、教育委員会へのそういった関係者からの要望活動があるというようなことは情報としてお聞きをしたことがございます。ただ、いずれにしましても、そういった作業用のトラック等につきましては、警察、あるいは関係機関との中で許可される部分については、許可という形で処理されるというように考えております。ですから、それは、それぞれの所管で判断していくものというように考えてございます。 ○武澤委員長 田中課長。 ○田中管理課長 最初の事故の件につきまして、もしあれば、うちの方のガードパイプ等の修理等が出てくるかと思いますけれども、最近の事件の中ではちょっと見当たらないということで、一度そういう問い合わせ等がありましたので、余計なことだったかもしれませんが、そういう話は1件ありました。 それと、要望書につきましては、委員の御指摘のとおり、ここの六角坂の件でよろしいですね。公安委員会の方への要望と同時に、教育委員会の方にも出しております。私どもに向けても出ておりますけれども、その回答は、要望書の中身を見ますと、通常の生活道路の中での大型車両の通行規制という内容でしたので、これにつきましては、交通規制の関係で公安局が検討する中身ですというと同時に、文京区といたしましては、道路管理者として、道路法等関連法規に基づいて、今後も対応してまいりたいというような、要望書に対する答弁書を用意したところでございます。 ○武澤委員長 江口指導課長。 ○江口指導課長 委員からお話がございました、障害児の方が事故に遭いそうになったという件は、あそこは、今、紛争になってございますので、紛争の一環ということで住民の方がお見えになったときに、その中でお話はありましたので、それは聞いてございますし、その件につきましては、住民の方が教育委員会の方にその日に回って、教育委員会の方にも陳情といいますか、話をしたということは、私の方でも確認してございます。 ○武澤委員長 村越委員。 ○村越副委員長 多分、田中課長は、12月1日のことを、前にその1件問い合わせがあったんだけれどもというのは、それはまた別で、私は、そのことについては聞いていなかったので、すいません。やはり、その交通、道路のこと、大型車両の通行に関しては区ではないからというのはあるかもしれませんけれども、あそこは子供たちが通る通学路ですし、住宅の中の道路なので、今回は、ひかれそうになったけれども事故にはならなかった。だけれども数年前ですか、もっと前ですか、子供が亡くなるという事故もありましたので、地域の方たちが、非常に工事車両などがたくさん通ることによって、また同じような事故が起こるのではないかという危惧をしていたら、12月1日にひかれそうになったということがあったので、すぐに教育委員会の方に来て、お話をされたと思いますので、区は第一義的には関係ないのかもしれませんけれども、やはり区民の安全ということでは、警察の方にも、こういう区民の声があるということは、何らかの形で、土木部の方たちは警察の方ともよく接触なさっていると思いますので、ぜひ、その辺の所は十分注意していただきたいと思います。それだけ要望。 ○武澤委員長 角野委員。 ○角野委員 村越委員ね、あなた副委員長なんだから、今の最後の要望はいいけれども、長々と一つの案件をやるべきでないよ。いろいろあるんだから、紛争するのなんか。紛争するものをここで全部取り上げていたら切りないのよ。その前にやる作業あるでしょう、副委員長として。それを解決してから、最後の要望をするのならいいけれども、長々とやりすぎですよ。苦言を呈しておくけれどもね。 ○村越副委員長 副委員長だから長々ととか、そういうことはあるんですか。これは区民の方たちから事前に聞かれたことで、やはりきちんと区の姿勢を、私は正副委員長との打合せのときでも発言する機会はあります。でも、正副は非公式ですので、発言させていただいております。まだ時間も、5時までの審議時間で、私も5時に近かったりとか、休憩時間の前でしたら、私も……。 ○角野委員 扱い方の問題だよ。全部、通常でやるべきでは。 ○武澤委員長 ちょっと待ってください。角野委員。 ○角野委員 あのね、紛争があったりなんかしたときに、全部、それをやる必要がないと思う。僕らだって、地域で抱えているけれども、それを全部ここでやるの。 ○村越副委員長 私、全部やっていません。 ○角野委員 やっているじゃないの、それに近いでしょう。だから、最後の要望とか、肝心なところはその前に処理しておいてやるべきでしょう。例えば、うちの方でやっているものを最初からここであれはどうなんだ、これはどうなんだってやったら切りないよ、この委員会。いくら時間があっても足りない。そういうことがあったときに、正副委員長で委員会をまとめる立場なんだから、それをとうとうとやるべきでないですよ。それはね、案件で扱わなくてはいけないケースはあるよ。だけれども、あなたの今の質問のやりとりは、かなりの部分を占めているから。前もって聞けばいい話じゃないの。エッセンスで、これはこういうふうに地域の人の要望があるからこうしてくれという話ならいいけれども、もうちょっと研究してよ。じゃないと切りないよ。 ○村越副委員長 すみません。 ○武澤委員長 いいですか。 松田土木部参事。 ○松田土木部参事 40年代に、あそこで通学時の子供さんが死亡事故を起こしたときの話だと思うんですけれども、そのとき区が何もやっていないということの副委員長のお話でしたけれども、私ども、そのときは即ガードレールの設置ということで、歩車分離の対策を取ったということでございますので、区はそういう対応を即しているというところでございます。 ○武澤委員長 それでは一般質問を終わらせていただきます。
|
||||||||||||||||||||||||||||||||||||||||||||||||||||||||||||||||||||||||||||||||||||||||||||||||||||||||||||||||||||||||||||||||||||||||||||||||||||||
|
7月25日に開催された 小石川二丁目マンション行政訴訟の意見交換会で配布された資料です。 東京都情報公開条例により公開されたものだそうです。 行政機関は、説明責任を果たしているということでしょうか。 それに対して 開発事業者(NIPPO 神鋼)から 説明会の開催についてお知らせがありません。 図面等も配布されません。 説明していただきたいものです。
|
|||||||||
|
知ってるつもりの交通事故用語―有限会社 シグナルのページから抜粋です。
|
||||||||||||||||||||||||||||||||||
|
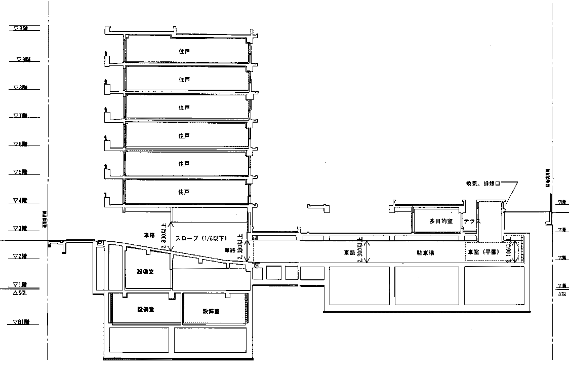
メルマガ紹介記事 「傾斜している車路の勾配に注意」 https://www.sumai-surfin.com/member/wmbbs/wmbbs.php?s=0&b=50&o=175 建築基準法では、特殊建築物に付随する大規模駐車場(500m2以上)の場合、傾斜する車路の勾配を1/6以下と規定しているそうです。 |
堀坂、六角坂の周辺住民は 静謐で整然とした小石川の町並みに ふさわしいマンション建設を求めています。
|
||||||||||||||||||||||||||
詳しくは 日刊建設工業新聞をお読みください。 |
|
☆「開発事業者(NIPPO 神鋼)から図面等も配布されません」は、→こちらの記事をご参照ください。
|
|
|||||||||||||||||||||||||||||||||||||||||||||||||||||||||||||||||||||||||||||||||||||||||||||||||||||||||||||||||||||||||||||||||||||||||||||||||||||||||||||||||||||||||||||||||||||||||||||||||||||
| 忍者ブログ [PR] Powered by NINJA TOOLS | ||||||||||||||||||||||||||||||||||||||||||||||||||||||||||||||||||||||||||||||||||||||||||||||||||||||||||||||||||||||||||||||||||||||||||||||||||||||||||||||||||||||||||||||||||||||||||||||||||||||

