|
× [PR]上記の広告は3ヶ月以上新規記事投稿のないブログに表示されています。新しい記事を書く事で広告が消えます。 |
|
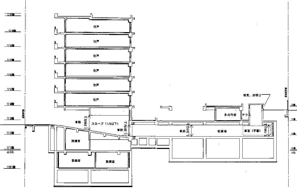
メルマガ紹介記事 「傾斜している車路の勾配に注意」 https://www.sumai-surfin.com/member/wmbbs/wmbbs.php?s=0&b=50&o=175 建築基準法では、特殊建築物に付随する大規模駐車場(500m2以上)の場合、傾斜する車路の勾配を1/6以下と規定しているそうです。 PR |
|
トラックバックURL
|

